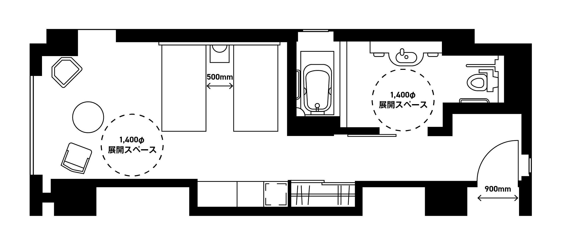
ハートフルルーム(ユニバーサルルーム)
屈斜路プリンスホテル・東館
車いすでも快適にご利用できるように設計。お部屋内の通路を広くとり、バス・トイレには手すりが施されております。
この部屋の特長・魅力
基本情報
| 面積 | 38.6㎡ |
|---|---|
| ベッドサイズ+台数 | 幅105㎝×長さ195㎝ 2台 |
| 定員 | 1名〜2名 |
| フロア | 1F |
レイアウト
客室設備
客室設備・備品
アメニティー
注意事項
※ 入湯税は含まれておりません。
安全・快適にお過ごしいただくために
プレミアムな喜びを
プリンスホテルズ&リゾーツの
会員制度のご案内
SEIBU PRINCE CLUB / 菊華会 / PRINCE KIDS CLUB
プリンスホテルズ&リゾーツで過ごす時間をもっと上質に、
もっと快適に彩る。
宿泊のベストレート保証や季節限定のプランの優先ご予約など、
特典を多数ご用意しております。







